LED Beleuchtung für die Decke (Spitzdecke)
Moderator: T.Hoffmann
-
Blumennapf
- User

- Beiträge: 15
- Registriert: Mo, 29.06.15, 12:35
Hallo zusammen,
durch zufall bin ich hier bei euch im Forum gelandet und bin von Euren Tipps und Ideen sehr begeistert.
Ich bin zur Zeit dabei eine Doppelhaushälfte zu sanieren. Natürlich soll unser Wohnzimmer ein Hightlight für uns werden und da darf natürlich keine LED-Beleuchtung fehlen.
Hier ein paar Details zum Raum:
Der Raum ist L-Förmig. an "lange Seite" vom L ist direkt die offene Küche angeschlossen. In diesem Teil wird später ein großer Esstisch sowie unser Ofen Platz finden.
In dem kurzen Teil vom L wird nachher unser Wohnzimmer mit einer offenen Decke (Spitzdach) sein. (Der andere Teil hat eine normale flache Decke).
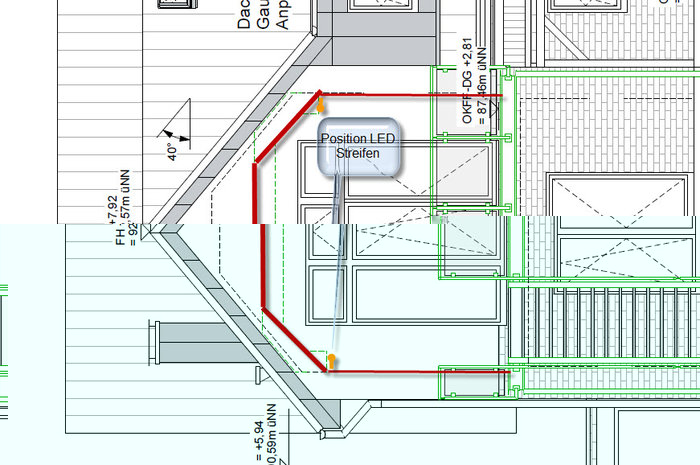
Und genau in diesem offenen Teil möchte ich links und rechts ein LED-Band (5 m) installieren und damit die Decke ausleuchten. Damit wir die Helligkeit einstellen können, sollen diese Streifen mit einem normalen Lichtschalter dimmbar sein. Zusätzlich zu dem Streifen wird es in der Mitte des Raums eine Pendelleuchte geben (wenig Leuchtkraft).
Welche LED-Streifen könnt ihr mir empfehlen, damit der Raum hell genug ausgeleuchtet ist und dimmbar sind? Nicht zuvergessen sollen diese mit einem normalen Schalter gedimmt und ein- / ausgeschaltet werden können.
In der Anlage findet ihr noch einmal ein paar Skizzen.
Ich freue mich schon sehr über eure Tipps und Ratschläge.
durch zufall bin ich hier bei euch im Forum gelandet und bin von Euren Tipps und Ideen sehr begeistert.
Ich bin zur Zeit dabei eine Doppelhaushälfte zu sanieren. Natürlich soll unser Wohnzimmer ein Hightlight für uns werden und da darf natürlich keine LED-Beleuchtung fehlen.
Hier ein paar Details zum Raum:
Der Raum ist L-Förmig. an "lange Seite" vom L ist direkt die offene Küche angeschlossen. In diesem Teil wird später ein großer Esstisch sowie unser Ofen Platz finden.
In dem kurzen Teil vom L wird nachher unser Wohnzimmer mit einer offenen Decke (Spitzdach) sein. (Der andere Teil hat eine normale flache Decke).
Und genau in diesem offenen Teil möchte ich links und rechts ein LED-Band (5 m) installieren und damit die Decke ausleuchten. Damit wir die Helligkeit einstellen können, sollen diese Streifen mit einem normalen Lichtschalter dimmbar sein. Zusätzlich zu dem Streifen wird es in der Mitte des Raums eine Pendelleuchte geben (wenig Leuchtkraft).
Welche LED-Streifen könnt ihr mir empfehlen, damit der Raum hell genug ausgeleuchtet ist und dimmbar sind? Nicht zuvergessen sollen diese mit einem normalen Schalter gedimmt und ein- / ausgeschaltet werden können.
In der Anlage findet ihr noch einmal ein paar Skizzen.
Ich freue mich schon sehr über eure Tipps und Ratschläge.
Hallo Blumennapf, willkommen im Forum. Schönes Vorhaben, das wird sicher gut. Als erstes sollten wir besser definieren, wie hell es sein soll. Du schreibst "hell genug" - aber hell genug wofür ? Um den Weg zu finden brauchst du nicht so viel Licht wie um auf dem Boden liegend lesen zu können. Versuch mal zu beschreiben welche Helligkeit du mindestens erreichen möchtest, denn das ist ausschlaggebend für die Auswahl des Materials. Kennst du dich evtl. ein wenig mit Lumen und Lux aus ? Das würde die Sache einfacher machen.
Falls nicht, kannst Du uns vielleicht sagen mit wie vielen 60W Glühbirnen es etwa hell genug wäre...Kennst du dich evtl. ein wenig mit Lumen und Lux aus ?
Noch was: Eine rein indirekte Beleuchtung ist eine sehr verlustreiche Methode (selbst bei sehr gut reflektierender Wandfarbe). So wie gezeichnet würden höchstens 30% des Lichts der LED-Leisten im Raum ankommen. Wenn der Winkel zwischen LED-Leiste und Dachschräge nicht nur 40° sondern etwa 90° wäre, könnten es immerhin etwa 50-60% sein. Auch die Länge des sichtbaren Lichtkegels würde so etwas zunehmen (ansonsten schätze ich die optisch wahrnehmbare 'Reichweite' auf höchstens 1m).
-
Blumennapf
- User

- Beiträge: 15
- Registriert: Mo, 29.06.15, 12:35
Hallo,
leider kenne ich mich mit Lumen und Lux überhaupt nicht aus.
Mit genug Helligkeit meine ich, das wir genug Licht haben um z.B. gemeinsam mit Freunden auf dem Sofa zusitzen um z.B. Spiele spielen zu können oder aber auch damit unser Kind nicht um dunkeln spielen muss. Natürlich wird es noch neben dem Sofa eine Stehleuchte geben, damit man auch ein Buch lesen kann.
Als Winkel ist in den Plänen 40° angegeben.
Wie viele Glühbinen ich benötige um den Raum genug auszuleuchten, kann ich zur Zeit noch nicht sagen. Die Jalousien sind zwar schon installiert, aber leider fehlt hierfür noch der Stromanschluss.
leider kenne ich mich mit Lumen und Lux überhaupt nicht aus.
Mit genug Helligkeit meine ich, das wir genug Licht haben um z.B. gemeinsam mit Freunden auf dem Sofa zusitzen um z.B. Spiele spielen zu können oder aber auch damit unser Kind nicht um dunkeln spielen muss. Natürlich wird es noch neben dem Sofa eine Stehleuchte geben, damit man auch ein Buch lesen kann.
Als Winkel ist in den Plänen 40° angegeben.
Wie viele Glühbinen ich benötige um den Raum genug auszuleuchten, kann ich zur Zeit noch nicht sagen. Die Jalousien sind zwar schon installiert, aber leider fehlt hierfür noch der Stromanschluss.
Hallo Blumennapf,
ein sehr ähnliches Vorhaben hatten wir gerade erst kürzlich hier. Wenn Du keine Ahnung von der gewünschten Helligkeit hast: für Wohnräume wird meist eine Beleuchtungsstärke von 100 Lux empfohlen. Dein Raum ist 4 * 4,81 = 19,24 m² groß. Theoretisch bräuchtest Du also LEDs mit insgesamt 19,24 m² * 100 Lux = 1924 Lumen. In der Praxis funktioniert das aber so nicht, weil es Verluste gibt und die Alterung und Verschmutzung der Lampen einkalkuliert werden muss. Bei einer indirekten Beleuchtung sind die Verluste sehr hoch, da würde ich das dreifache des theroretischen Werts als Minimum ansetzen, also knapp 6000 Lumen.
Eine geeignete Leiste wäre die LumiFlex Performer 35. Wenn Du davon auf jeder Seite 4,5m anbringst, sind das 18 * 525 = 9450 Lumen. Das ist nochmal etwas mehr, schadet aber nichts. Insbesondere wenn es sowieso dimmbar werden soll, kann man ja nicht "zu viel" installieren.
Zum Vorhaben ganz allgemein: es wäre auf jeden Fall sehr sinnvoll, noch weitere Beleuchtung vorzusehen. Eine Mischung aus direktem und indirektem Licht ist immer besser als nur eins davon. Wenn Du schon eine Pendel- und eine Stehleuchte vorgesehen hast, ist das ein guter Anfang.
Zum Dimmen: mit einem "normalen Schalter" könnte man bestenfalls eine StepDim-Funktion realisieren, d. H. es gibt nur ein, aus und eine einzige feste Dimmstufe (z. B. 30%). Für stufenloses Dimmen brauchst Du einen Drehregler oder einen Taster. Damit steuerst Du einen PWM-Dimmer oder ein spezielles Netzteil. Alternativ kann man eine Fernbedienung bzw. Hausautomatisierungskomponenten verwenden, was weitere Möglichkeiten eröffnet (z. B. die an einer normalen Steckdose angeschlossene Stehleuchte zentral mitschalten).
Den Winkel würde ich auf jeden Fall ändern, bzw. am besten vor der festen Montage erst mal verschiedene Winkel ausprobieren. Mit den 40° dürftest Du direkt bei der LED-Leiste ein gleißend helles Lichtband bekommen, was dann schnell nach oben hin dunkler wird. Ganz vermeiden lässt sich das ohnehin nicht, aber bestimmt etwas abmildern.
-Handkalt
ein sehr ähnliches Vorhaben hatten wir gerade erst kürzlich hier. Wenn Du keine Ahnung von der gewünschten Helligkeit hast: für Wohnräume wird meist eine Beleuchtungsstärke von 100 Lux empfohlen. Dein Raum ist 4 * 4,81 = 19,24 m² groß. Theoretisch bräuchtest Du also LEDs mit insgesamt 19,24 m² * 100 Lux = 1924 Lumen. In der Praxis funktioniert das aber so nicht, weil es Verluste gibt und die Alterung und Verschmutzung der Lampen einkalkuliert werden muss. Bei einer indirekten Beleuchtung sind die Verluste sehr hoch, da würde ich das dreifache des theroretischen Werts als Minimum ansetzen, also knapp 6000 Lumen.
Eine geeignete Leiste wäre die LumiFlex Performer 35. Wenn Du davon auf jeder Seite 4,5m anbringst, sind das 18 * 525 = 9450 Lumen. Das ist nochmal etwas mehr, schadet aber nichts. Insbesondere wenn es sowieso dimmbar werden soll, kann man ja nicht "zu viel" installieren.
Zum Vorhaben ganz allgemein: es wäre auf jeden Fall sehr sinnvoll, noch weitere Beleuchtung vorzusehen. Eine Mischung aus direktem und indirektem Licht ist immer besser als nur eins davon. Wenn Du schon eine Pendel- und eine Stehleuchte vorgesehen hast, ist das ein guter Anfang.
Zum Dimmen: mit einem "normalen Schalter" könnte man bestenfalls eine StepDim-Funktion realisieren, d. H. es gibt nur ein, aus und eine einzige feste Dimmstufe (z. B. 30%). Für stufenloses Dimmen brauchst Du einen Drehregler oder einen Taster. Damit steuerst Du einen PWM-Dimmer oder ein spezielles Netzteil. Alternativ kann man eine Fernbedienung bzw. Hausautomatisierungskomponenten verwenden, was weitere Möglichkeiten eröffnet (z. B. die an einer normalen Steckdose angeschlossene Stehleuchte zentral mitschalten).
Den Winkel würde ich auf jeden Fall ändern, bzw. am besten vor der festen Montage erst mal verschiedene Winkel ausprobieren. Mit den 40° dürftest Du direkt bei der LED-Leiste ein gleißend helles Lichtband bekommen, was dann schnell nach oben hin dunkler wird. Ganz vermeiden lässt sich das ohnehin nicht, aber bestimmt etwas abmildern.
-Handkalt
Das bezweifelt ja auch niemand. Was ich meinte (und auch Handkalt) ist der Winkel in dem die LED-Leiste an die Decke strahlt: Im ersten Fall wäre es nur ein kleiner Teil indirektes Licht und eine ganze Menge direktes Licht (effizienteste Möglichkeit). So wie von Dir gezeichnet (Fall 2) passiert genau das was Handkalt angedeutet hat:Als Winkel ist in den Plänen 40° angegeben.
Außerdem wirst Du in diesem Fall eher die 4 fache Leistung brauchen wie bei Fall 1...Mit den 40° dürftest Du direkt bei der LED-Leiste ein gleißend helles Lichtband bekommen, was dann schnell nach oben hin dunkler wird.
Im letzten Bild ist da zu sehen was ich mit 90° Winkel meinte. In diesem Fall gibt es noch eine gewisse Menge direktes Licht, so dass vmtl. schon 4000 lm reichen würden.
Wenn man die LED-Leiste nicht sehen darf, kann man die Leiste auch in einen Winkel setzen (grau eingezeichnet). Hier gilt dann etwa das was Handkalt gerechnet hat (ca. 6000lm).
-
Blumennapf
- User

- Beiträge: 15
- Registriert: Mo, 29.06.15, 12:35
Hallo,
vielen Dank.
wenn ich es jetzt richtig verstanden habe kann ich 2 x die "LumiFlex Performer LED Leiste, 35 LEDs, 50cm, 24V warmweiß" in je 5 m kaufen.
Diese schließe anschließend an einen "PWM-Dimmer" oder an einem "Netzteil" an. (wahrscheinlich brauche ich je Leiste ein Netzteil?)
von diesem "Dimmer" oder "Netzteil" gehe ich dann zu dem Schalter/Taster. (Ich meinte eigentlich mit Schalter einen Taster, also so ein Lichtschalter mit welchem ich Stufenlos dimmen kann). Eine Fernbedienung möchten wir nicht gerne nutzen, da wir diese bestimmt oft suchen müssen.
Was genau für ein spezielles Netzteil benötige ich, damit ich mit dem Taster/Schalter dimmen kann? (Meistens ist die Dimmfunktion ja schon im Netzteil eingebaut?)
Geplant haben wir von den 3 Varianten die 2te. Ich könnte mir vorstellen das wir aber auf die 3te Variante wechseln könnten. Variante 1 ist leider nicht mehr möglich, da schon die untere Kante (wo der LED-Streifen aufgeklebt wird) schon vom Trockenbauer angebracht wurde.
Für die 3 Variante müssten wir therorisch den LED-Streifen nur leicht angewickelt anbringen, was eigentlich keine Probleme bereiten sollte.
Mit den 40° meinte ich eigentlich die Dachneigung... hatte es falsch verstanden. Wäre es sinnvoll den Winkel für den LED-Streifen = dem Winkel der Dachneigung anzunehmen?
vielen Dank.
wenn ich es jetzt richtig verstanden habe kann ich 2 x die "LumiFlex Performer LED Leiste, 35 LEDs, 50cm, 24V warmweiß" in je 5 m kaufen.
Diese schließe anschließend an einen "PWM-Dimmer" oder an einem "Netzteil" an. (wahrscheinlich brauche ich je Leiste ein Netzteil?)
von diesem "Dimmer" oder "Netzteil" gehe ich dann zu dem Schalter/Taster. (Ich meinte eigentlich mit Schalter einen Taster, also so ein Lichtschalter mit welchem ich Stufenlos dimmen kann). Eine Fernbedienung möchten wir nicht gerne nutzen, da wir diese bestimmt oft suchen müssen.
Was genau für ein spezielles Netzteil benötige ich, damit ich mit dem Taster/Schalter dimmen kann? (Meistens ist die Dimmfunktion ja schon im Netzteil eingebaut?)
Geplant haben wir von den 3 Varianten die 2te. Ich könnte mir vorstellen das wir aber auf die 3te Variante wechseln könnten. Variante 1 ist leider nicht mehr möglich, da schon die untere Kante (wo der LED-Streifen aufgeklebt wird) schon vom Trockenbauer angebracht wurde.
Für die 3 Variante müssten wir therorisch den LED-Streifen nur leicht angewickelt anbringen, was eigentlich keine Probleme bereiten sollte.
Mit den 40° meinte ich eigentlich die Dachneigung... hatte es falsch verstanden. Wäre es sinnvoll den Winkel für den LED-Streifen = dem Winkel der Dachneigung anzunehmen?
Hier findest du ein dimmbares Netzteil für Phasenan- und -abschnittsdimmung wie es bei Wandschaltern (noch) üblich ist. Wermutstropfen : es geht nur bis 45W, 5m Leiste gehen bis 48W. Mögliche Kombination : 1 x das 45W NT und 2 x das 30W NT, damit kommst du auf knapp über 10m Leiste.
Naja, die Wand ist ja nur 4,81 m breit. Von daher passen sowieso keine 5m hin, und es empfiehlt sich auch nicht, bis zum letzten cm ins Eck zu verlegen. 4,5 m müsste mit je einem dimmbaren Netzteil auf jeder Seite gerade noch klappen.
Sichtbar würde ich die Leiste ehrlich gesagt nicht montieren. Ich denke, das blendet zu sehr. Bei der dritten Variante im Bild von Borax würde ich einfach mal ausprobieren, ob man eine Abdeckung braucht oder ob es brauchbare Neigung gibt, bei der man nicht direkt in die LEDs blicken kann und auch die Lichtverteilung an der Decke gut ist.
-Handkalt
Sichtbar würde ich die Leiste ehrlich gesagt nicht montieren. Ich denke, das blendet zu sehr. Bei der dritten Variante im Bild von Borax würde ich einfach mal ausprobieren, ob man eine Abdeckung braucht oder ob es brauchbare Neigung gibt, bei der man nicht direkt in die LEDs blicken kann und auch die Lichtverteilung an der Decke gut ist.
-Handkalt
Dann halt nur 4.5m nehmen... Wenn es insgesamt 4.8m sind, fallen die 'fehlenden' 15cm links und rechts nicht auf. Dann reicht das 45W Netzteil genau.
Man könnte den LED-Streifen auch in ein Alu-U-Profil einkleben. Das tut ihm gut (bessere Kühlung) und das U-Profil kann direkt an die Schräge geschraubt/geklebt werden. Um das Verstauben ein wenig abzumildern kann man auch ein Profil mit Abdeckung nehmen.Für die 3 Variante müssten wir therorisch den LED-Streifen nur leicht angewickelt anbringen, was eigentlich keine Probleme bereiten sollte.
Ich frag mich gerade ob ich für mich ne 35 nehmen würde oder nicht doch die 70-er. Zu hell kann man runterdimmen, aber zu dunkel nicht rauf. Auf jedem Fall vor dem installieren einfach mal vorsichtig abrollen und ans NT anschließen, damit du vor dem Festeinbau schon mal einen Eindruck bekommst. Wenns dir danach nicht gefällt hast n Problem.
-
Blumennapf
- User

- Beiträge: 15
- Registriert: Mo, 29.06.15, 12:35
Zusammengefasst hast das jetzt:
2 x LED Streifen á 4,50 m mit 35 LEDs (http://www.leds.de/LED-Leisten-Module/F ... weiss.html)
alternativ
2 x LED Streifen á 4,50 mit 70 LEDs http://www.leds.de/LED-Leisten-Module/F ... weiss.html
Dazu benötige ich dann noch noch
2 x Netzgerät 24V / 45W http://www.leds.de/LED-Zubehoer/Spannun ... mmbar.html
Benötige ich noch mehr?
Was ist mit den Streifen die direkt 5m sind? Gibt es da unterschiede zu dem oben genannten? Kann ich diese passend kürzen?
http://www.leds.de/LED-Leisten-Module/F ... weiss.html
alternativ
http://www.leds.de/LED-Leisten-Module/F ... weiss.html
Welche Kabel werden dafür benötigt?
Wir haben 1 Kabel für beiden Wandseiten gemeinsam verlegt. Dieses Kabel (5 Adern) geht vom "Taster" hoch zur Decke.
Wo muss ich das Netzgerät anschließen? Muss dieses zwischen Taster und LED Streifen eingesetzt werden? Oder muss dieses vor dem Taster eingesetzt werden?
Eigentlich kann ich doch am Taster ein Kabel anschließen, dieses Kabel teilt sich später in zwei einzelne Kabel wo dann die Netzgeräte angeschlossen werden und von dort geht es zu dann den jeweiligen LED-Streifen?
2 x LED Streifen á 4,50 m mit 35 LEDs (http://www.leds.de/LED-Leisten-Module/F ... weiss.html)
alternativ
2 x LED Streifen á 4,50 mit 70 LEDs http://www.leds.de/LED-Leisten-Module/F ... weiss.html
Dazu benötige ich dann noch noch
2 x Netzgerät 24V / 45W http://www.leds.de/LED-Zubehoer/Spannun ... mmbar.html
Benötige ich noch mehr?
Was ist mit den Streifen die direkt 5m sind? Gibt es da unterschiede zu dem oben genannten? Kann ich diese passend kürzen?
http://www.leds.de/LED-Leisten-Module/F ... weiss.html
alternativ
http://www.leds.de/LED-Leisten-Module/F ... weiss.html
Welche Kabel werden dafür benötigt?
Wir haben 1 Kabel für beiden Wandseiten gemeinsam verlegt. Dieses Kabel (5 Adern) geht vom "Taster" hoch zur Decke.
Wo muss ich das Netzgerät anschließen? Muss dieses zwischen Taster und LED Streifen eingesetzt werden? Oder muss dieses vor dem Taster eingesetzt werden?
Eigentlich kann ich doch am Taster ein Kabel anschließen, dieses Kabel teilt sich später in zwei einzelne Kabel wo dann die Netzgeräte angeschlossen werden und von dort geht es zu dann den jeweiligen LED-Streifen?
Du kannst auch die ganzen 5m nehmen und entsprechend kürzen. Für die Performer70 wären aber 4 solche Netzgeräte nötig. Ich denke aber dass die 35'er reicht. Wenn von den knapp 10.000lm wenigstens ein Viertel im Raum ankommt, sind das immer noch 2500 lm, was grob etwa zwei 100W Glühbirnen entspricht. Da es sich ja um eine 'Wohnzimmerbeleuchtung' handelt (und nicht um eine Arbeitsplatzbeleuchtung) sollte das reichen.
Und Vorsicht: 5 Adern könnten auch 3 Adern für L, N und PE sein + 2 Adern als 1-10V Steuerleitung...
Was ist das genau für ein Taster? Hast Du da einen Hersteller + Modellnummer/Bezeichnung für uns?
Weil so ist das ein wenig 'Kaffeesatz lesen'...
Und von dort? Teilen sich die 5 Adern in zwei parallele Stränge für die Wandseiten auf oder wie geht es da weiter?Dieses Kabel (5 Adern) geht vom "Taster" hoch zur Decke.
Und Vorsicht: 5 Adern könnten auch 3 Adern für L, N und PE sein + 2 Adern als 1-10V Steuerleitung...
Was ist das genau für ein Taster? Hast Du da einen Hersteller + Modellnummer/Bezeichnung für uns?
Weil so ist das ein wenig 'Kaffeesatz lesen'...
- R.Kränzler
- Moderator
- Beiträge: 1700
- Registriert: Mo, 26.11.07, 08:49
- Wohnort: Haigerloch
Diese Leisten haben einen schlechteren Farbwiedergabeindex (CRI) und viel weniger Helligkeit und Effizienz, für Beleuchtungszwecke würde ich unbedingt die Performer Leisten mit den Marken LEDs von Nichia empfehlen.Was ist mit den Streifen die direkt 5m sind? Gibt es da unterschiede zu dem oben genannten? Kann ich diese passend kürzen?
http://www.leds.de/LED-Leisten-Module/F ... weiss.html
alternativ
http://www.leds.de/LED-Leisten-Module/F ... weiss.html
Was ist mit den Streifen die direkt 5m sind? Gibt es da unterschiede zu dem oben genannten? Kann ich diese passend kürzen?
http://www.leds.de/LED-Leisten-Module/F ... weiss.html
alternativ
http://www.leds.de/LED-Leisten-Module/F ... weiss.html
Ja, da gibt es einen großen Unterschied
Die Economy-Serie ist rein für Kurzzeitanwendungen gedacht, z. B. Messebauten etc. jedoch nicht für dauerhafte Installationen. Eben Projekte, wo hauptsächlich der Preis im Vordergrund steht. Auch die Helligkeiten sind deutlich anders als bei der Performer-Serie.
Die Lumenangaben sind hier für die gesamten 5m gerechnet, das heißt:
200lm/50cm (bzw. 2000lm/5m) bei der Economy 350LEDs
390lm/50cm (bzw. 3900lm/5m) bei der Economy 700LEDs
525lm/50cm (bzw. 5250lm/50cm) bei der Performer 35
1050lm/50cm (bzw. 10500lm/5m) bei der Performer 70
Zusätzlich hat die Performer Variante 3 Jahre Garantie und wird somit für dauerhafte Installationen empfohlen
Vergleich zur Performer Serie:
Wenn Du die NUDI24-Netzgeräte verwenden willst, funktioniert das nicht mit einem Taster. Dann müsstest Du den Taster durch einen Phasenan- oder -abschnittdimmer (möglichst einen der im Datenblatt genannten) ersetzen. Ein Phasenan- oder -abschnittdimmer kommt meist als so ein "Dreh-Druckknopf" oder "Dreh-Wippschalter" daher. Das ist so ein Ding, wie man es traditionell zum Dimmen von Glühlampen verwendet.Blumennapf hat geschrieben:Wir haben 1 Kabel für beiden Wandseiten gemeinsam verlegt. Dieses Kabel (5 Adern) geht vom "Taster" hoch zur Decke.
Wo muss ich das Netzgerät anschließen? Muss dieses zwischen Taster und LED Streifen eingesetzt werden? Oder muss dieses vor dem Taster eingesetzt werden?
Wenn Du hingegen einen Taster verwenden willst, brauchst Du ein Netzteil mit Push-Dim-Eingang. Das einfachste wäre ein VSTR-Netzteil von TCI. Ein solches Netzteil reicht für beide Seiten. Du gehst mit L, N, PE und einem über den Taster geschalteten L zum Netzteil. An der anderen Seite des Netzeils werden die beiden Leisten parallel angeschlossen. Das Netzteil sollte so platziert werden, dass die Kabel zu den Leisten möglichst kurz werden.
Das VSTR-Netzteil gibt's leider nicht bei leds.de, nur das ähnliche OTi DALI, was aber mit 75 W nicht ausreicht. Zwei Netzteile parallel an einen Taster anschließen ist nicht empfehlenswert, da der Schalt-/Dimzustand auseinanderlaufen kann. Per Google habe ich z. B. diesen Shop gefunden, der das VSTR verkauft.
Es gäbe noch weitere Alternativen mittels dem Meanwell DAP-04 oder einem DALI-Controller. Das ist aber alles komplizierter und in Summe vermutlich auch teurer als das VSTR.
-Handkalt
Mit "Taster" könnte aber auch so was gemeint sein: https://www.gira.de/gebaeudetechnik/pro ... immer.html
Darum brauchen wir erst mal eine genaue Angabe was dieser "Taster" technisch eigentlich ist.
Darum brauchen wir erst mal eine genaue Angabe was dieser "Taster" technisch eigentlich ist.
-
Blumennapf
- User

- Beiträge: 15
- Registriert: Mo, 29.06.15, 12:35
Hallo,
ich habe mich nun erkundigt.
Ich habe einen sogenannten "Tronic Dimmer".
Reicht diese Information?
ich habe mich nun erkundigt.
Ich habe einen sogenannten "Tronic Dimmer".
Reicht diese Information?
Nein. Reicht nicht. Mit "Tronic Dimmer" werden sowohl elektronische Potentiometer bezeichnet (wie z.B.: http://www.amazon.de/Busch-Jaeger-2112U ... B000ONOA9A ) als auch kombinierte Phasenanschnitt/Phasenabschnitt Dimmer (Universaldimmer) http://www.jung.de/de/online-katalog/62514375/ oder auch reine Phasenanschnitt Dimmer. Z.B.: http://www.elv.de/peha-up-grundelement- ... 250-w.html. Ich vermute zwar dass es eher letzteres ist... aber sicher ist das nicht. Eine genaue Typbezeichnung wäre da wesentlich hilfreicher.
-
Blumennapf
- User

- Beiträge: 15
- Registriert: Mo, 29.06.15, 12:35
Hallo,
bei dem Lichtschalter / Tronic Dimmer bin ich auch noch variabel.
Ich habe mir jetzt erstmal folgenden Trafo ausgeguckt:
MW HLG-240H-24B | Schaltnetzteil f. LED, 240W /24V /10A, IP67
Dazu brauche ich jetzt noch die passenden LEDStreifen.
Ich kann da ja auch die Lichtleiste LumiFlex Performer anschließen?
http://www.leds.de/LED-Leisten-Module/F ... weiss.html
Brauche ich noch irgendwelche speziellen Verbindungskabel oder was anderes?
bei dem Lichtschalter / Tronic Dimmer bin ich auch noch variabel.
Ich habe mir jetzt erstmal folgenden Trafo ausgeguckt:
MW HLG-240H-24B | Schaltnetzteil f. LED, 240W /24V /10A, IP67
Dazu brauche ich jetzt noch die passenden LEDStreifen.
Ich kann da ja auch die Lichtleiste LumiFlex Performer anschließen?
http://www.leds.de/LED-Leisten-Module/F ... weiss.html
Brauche ich noch irgendwelche speziellen Verbindungskabel oder was anderes?
Das MW HLG-240H-24B ist wahrscheinlich nicht ganz so gut geeignet. Dimmbar ist das nur im Konstantstrombetrieb. Im Konstantspannungsbetrieb (also mit 24V wie bei LED-Leisten üblich) lässt es sich nur dann vernünftig dimmen, wenn Konstantstrombetrieb und Konstantspannung exakt zusammenfallen. Das ist genau dann der Fall , wenn alle angeschlossenen Leisten zusammen genau den Konstantstromwert den Netzteils erreichen. Beim MW HLG-240H-24B wären das genau 10A. Um die zu erreichen wären also 25 Stück der LumiFlex Performer Leisten nötig. Mit 24Stück (=12m) würde es auch gehen, aber mit rund 9m (also 18 Stück) ist der mögliche Dimmbereich schon eingeschränkt (auf ca. 30%-100%). Da wäre es besser, wenn Du ein HLG-185H-24B kaufen würdest. 18 Stück der LumiFlex Performer Leisten brauchen genau 7.2A. Das passt recht gut zum Konstantstromwert des HLG-185H-24B mit 7.8A. Damit sollte ein Dimmbereich von etwa 12% bis 100% möglich sein.
Das HLG-185H-24B gibt es bei Reichelt: https://www.reichelt.de/Treiber-fuer-LE ... &OFFSET=16& )
Das gilt so natürlich nur für die LumiFlex Performer Leisten mit 70 LEDs. Bei der Variante mit 35 LEDs: http://www.leds.de/LED-Leisten-Module/F ... weiss.html müsste es ein noch wesentlich schwächeres Netzteil aus der MW HLG Serie sein.
Anschlussschema wäre dann so:
Vom 'Taster' (=1-10V Tronic Dimmer) gehen 5 Adern zum Netzteil (L, N + PE und 2 Adern für die 1-10V Steuerspannung). Vom Netzteil dann je ein 2.5mm² Kabel zur Mitte der 4.5m Leisten. Wenn ein Anschluss in der Mitte der Leisten nicht möglich ist, dann sollte ein Kabel an beide Enden der Leisten verlegt werden. Vom Netzteil würden dann insgesamt 4 Kabel zu den Leisten gehen (in diesem Fall würden 1.5mm² reichen).
Das HLG-185H-24B gibt es bei Reichelt: https://www.reichelt.de/Treiber-fuer-LE ... &OFFSET=16& )
Das gilt so natürlich nur für die LumiFlex Performer Leisten mit 70 LEDs. Bei der Variante mit 35 LEDs: http://www.leds.de/LED-Leisten-Module/F ... weiss.html müsste es ein noch wesentlich schwächeres Netzteil aus der MW HLG Serie sein.
Gut. Weil der muss genau zum Netzteil passen.bei dem Lichtschalter / Tronic Dimmer bin ich auch noch variabel.
Zwischen Netzteil und Leiste ein anständig starkes Kabel. Mind. 1.5mm² besser 2.5mm². Idealerweise geht vom Netzteil je ein Kabel zur Mitte der 4.5m Leiste. Gut geeignet ist hier 2.5mm² Lautsprecherkabel.Brauche ich noch irgendwelche speziellen Verbindungskabel oder was anderes?
Anschlussschema wäre dann so:
Vom 'Taster' (=1-10V Tronic Dimmer) gehen 5 Adern zum Netzteil (L, N + PE und 2 Adern für die 1-10V Steuerspannung). Vom Netzteil dann je ein 2.5mm² Kabel zur Mitte der 4.5m Leisten. Wenn ein Anschluss in der Mitte der Leisten nicht möglich ist, dann sollte ein Kabel an beide Enden der Leisten verlegt werden. Vom Netzteil würden dann insgesamt 4 Kabel zu den Leisten gehen (in diesem Fall würden 1.5mm² reichen).
- Achim H
- Star-Admin

- Beiträge: 13067
- Registriert: Mi, 14.11.07, 02:14
- Wohnort: Herdecke (NRW)
- Kontaktdaten:
18 Stück der LumiFlex Performer Leisten brauchen genau 7.2A. Das passt recht gut zum der Konstantstromwert des HLG-185H-24B mit 7.8A.
Alternativ könnte man auch 2 Stück Meanwell PWM-90-24* verwenden und bis zu 9 Leisten (max. 3,6A) anschließen.
* dimmbares 24V Netzgerät, keine Konstantstromquelle, max. 3,75A
-
Blumennapf
- User

- Beiträge: 15
- Registriert: Mo, 29.06.15, 12:35
Borax hat geschrieben:Das MW HLG-240H-24B ist wahrscheinlich nicht ganz so gut geeignet. Dimmbar ist das nur im Konstantstrombetrieb. Im Konstantspannungsbetrieb (also mit 24V wie bei LED-Leisten üblich) lässt es sich nur dann vernünftig dimmen, wenn Konstantstrombetrieb und Konstantspannung exakt zusammenfallen. Das ist genau dann der Fall , wenn alle angeschlossenen Leisten zusammen genau den Konstantstromwert den Netzteils erreichen. Beim MW HLG-240H-24B wären das genau 10A. Um die zu erreichen wären also 25 Stück der LumiFlex Performer Leisten nötig. Mit 24Stück (=12m) würde es auch gehen, aber mit rund 9m (also 18 Stück) ist der mögliche Dimmbereich schon eingeschränkt (auf ca. 30%-100%). Da wäre es besser, wenn Du ein HLG-185H-24B kaufen würdest. 18 Stück der LumiFlex Performer Leisten brauchen genau 7.2A. Das passt recht gut zum Konstantstromwert des HLG-185H-24B mit 7.8A. Damit sollte ein Dimmbereich von etwa 12% bis 100% möglich sein.
Das HLG-185H-24B gibt es bei Reichelt: https://www.reichelt.de/Treiber-fuer-LE ... &OFFSET=16& )
Das gilt so natürlich nur für die LumiFlex Performer Leisten mit 70 LEDs. Bei der Variante mit 35 LEDs: http://www.leds.de/LED-Leisten-Module/F ... weiss.html müsste es ein noch wesentlich schwächeres Netzteil aus der MW HLG Serie sein.
Gut. Weil der muss genau zum Netzteil passen.bei dem Lichtschalter / Tronic Dimmer bin ich auch noch variabel.
Zwischen Netzteil und Leiste ein anständig starkes Kabel. Mind. 1.5mm² besser 2.5mm². Idealerweise geht vom Netzteil je ein Kabel zur Mitte der 4.5m Leiste. Gut geeignet ist hier 2.5mm² Lautsprecherkabel.Brauche ich noch irgendwelche speziellen Verbindungskabel oder was anderes?
Anschlussschema wäre dann so:
Vom 'Taster' (=1-10V Tronic Dimmer) gehen 5 Adern zum Netzteil (L, N + PE und 2 Adern für die 1-10V Steuerspannung). Vom Netzteil dann je ein 2.5mm² Kabel zur Mitte der 4.5m Leisten. Wenn ein Anschluss in der Mitte der Leisten nicht möglich ist, dann sollte ein Kabel an beide Enden der Leisten verlegt werden. Vom Netzteil würden dann insgesamt 4 Kabel zu den Leisten gehen (in diesem Fall würden 1.5mm² reichen).
Hallo, also schicke ich die bestellten Trafos "MW HLG-240H-24B" wieder zurück und bestelle 2 x den HLG-185H-24B.
Dann bestelle ich mir die http://www.leds.de/LED-Leisten-Module/F ... weiss.html
und davon 2 * 4,5 m.
Wie teile ich mit das ich 2 * 4,5 m brauche? Also 9 Module? Muss ich dafür 2 Bestellungen aufgeben mit jeweils 9 x 0,5m ?
Wie schließe ich anschließend die LEDS an den Trafo an? Ich habe gesehen das der Trafo insgesamt 3 Anschlüsse hat (Zumindest der HLG-240H-24B?)
Wieso 2 ???Hallo, also schicke ich die bestellten Trafos "MW HLG-240H-24B" wieder zurück und bestelle 2 x den HLG-185H-24B.
Für 9m (also 2 mal 4.5m) der LumiFlex Performer Leisten mit 70 LEDs brauchst Du genau EIN HLG-185H-24B. Mit zwei geht es nicht (siehe ausführliche Erklärung oben... hast Du die eigentlich gelesen? Oder hab ich mich so schlecht verständlich ausgedrückt?)
Andere Möglichkeit wären ZWEI Meanwell PWM-90-24 (siehe Link von Achim)
Das wäre vmtl. sinnvoll. Nicht als 2 Bestellungen, aber als eine Bestellung mit 2 mal den Artikel LumiFlex Performer Leiste mit 4.5m Länge. Im Zweifelsfall einfach per Mail bei Lumitronix nachfragen.Muss ich dafür 2 Bestellungen aufgeben mit jeweils 9 x 0,5m ?
Am HLG-185H-24B sind schon Kabel (30cm Länge) angebracht. Vom LED-Ausgangskabel zu einer Lüsterklemme oder Wago-Klemme und von dort zu den beiden Seiten mit den LED-Leisten.Wie schließe ich anschließend die LEDS an den Trafo an?
Ich hoffe so ist es verständlich:
-
Blumennapf
- User

- Beiträge: 15
- Registriert: Mo, 29.06.15, 12:35
Vielen Dank für die schnelle Antwort.
Einkauf ist getätigt:
1 x MW HLG-185H-24B (von reichelt) (Hatte den anderen vorher auch dort bestellt)
18 x LumiFlex Performer Leisten mit 70 LED á 0,50m (Als Bemerkungen wurde angegeben das ich 2 x 4,5 m benötige)
Einkauf ist getätigt:
1 x MW HLG-185H-24B (von reichelt) (Hatte den anderen vorher auch dort bestellt)
18 x LumiFlex Performer Leisten mit 70 LED á 0,50m (Als Bemerkungen wurde angegeben das ich 2 x 4,5 m benötige)


